1-3 Howe Moss Drive, Dyce , Aberdeen, Aberdeenshire, AB21 0GL
Property Summary
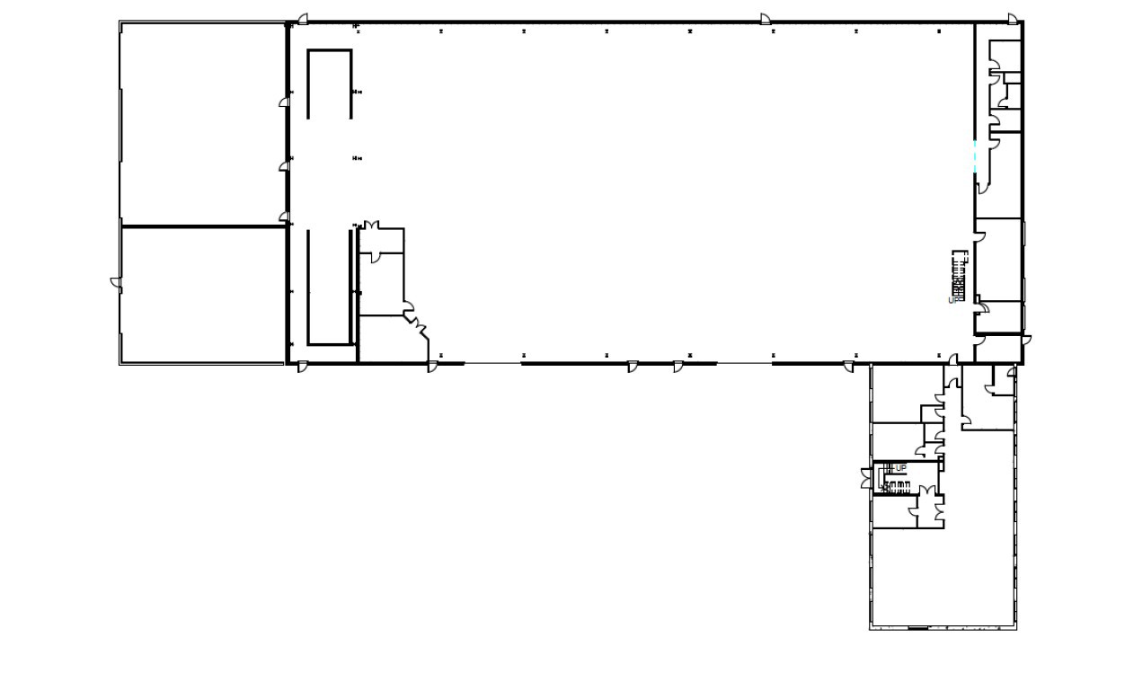
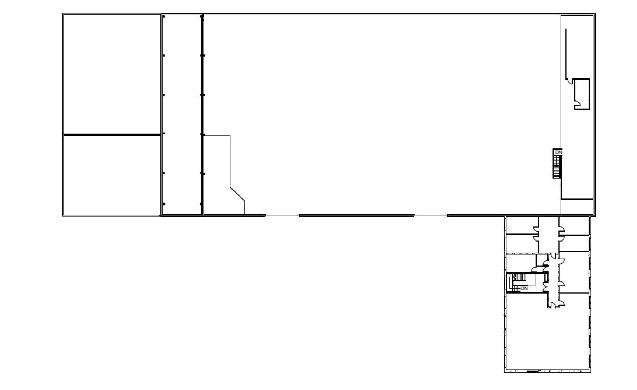
The main industrial unit is of a steel portal frame construction with blockwork walls to dado height and profile metal cladding thereafter.
The roof over, which was replaced approx. 7.5 years ago, is pitched and clad with insulated metal cladding incorporating translucent roof panels. Lighting is provided by a number of high bay LED light fitments. There are 2 roller shutter doors measuring circa 5.00M wide by 5.46M high with the eaves height being 5.2M. A 5T crane has been installed at the east side of the unit.
Warehouse offices have been installed within the space along with staff welfare facilities and a canteen. Above the warehouse offices is a mezzanine level which is accessed via a fixed metal staircase.
The warehouse has been extended to provide further warehouse/storage accommodation along with an area which was previously used as a paint spray area. 3 roller shutter doors provide access to these areas.
The high bay warehouse is of a steel portal frame construction which has been clad with insulated metal cladding with a pitched roof over similarly clad. Internally the eaves height is 8.28M and benefits from a 5T crane. The roller shutter door measures 5.00M wide by 5.30M high
The office is over two storeys and is laid out to provide a mixture of open plan and private office accommodation with kitchenette and w.c. facilities. There are good levels of natural light throughout with artificial lighting being provided by LED light boxes located within the suspended ceiling.
Full Details
The subjects comprise of a detached industrial and two storey office facility with concrete and hardcore yards along with a further detached high bay warehouse.
The main industrial unit is of a steel portal frame construction with blockwork walls to dado height and profile metal cladding thereafter.
The roof over, which was replaced approx. 7.5 years ago, is pitched and clad with insulated metal cladding incorporating translucent roof panels. Lighting is provided by a number of high bay LED light fitments. There are 2 roller shutter doors measuring circa 5.00M wide by 5.46M high with the eaves height being 5.2M. A 5T crane has been installed at the east side of the unit.
Warehouse offices have been installed within the space along with staff welfare facilities and a canteen. Above the warehouse offices is a mezzanine level which is accessed via a fixed metal staircase.
The warehouse has been extended to provide further warehouse/storage accommodation along with an area which was previously used as a paint spray area. 3 roller shutter doors provide access to these areas.
The high bay warehouse is of a steel portal frame construction which has been clad with insulated metal cladding with a pitched roof over similarly clad. Internally the eaves height is 8.28M and benefits from a 5T crane. The roller shutter door measures 5.00M wide by 5.30M high
The office is over two storeys and is laid out to provide a mixture of open plan and private office accommodation with kitchenette and w.c. facilities. There are good levels of natural light throughout with artificial lighting being provided by LED light boxes located within the suspended ceiling.
































