This property is not currently available. It may be sold or temporarily removed from the market.
2a View Terrace, Aberdeen, Aberdeenshire, AB25 2RR
For Sale
Property Summary
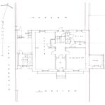
The subjects comprise a semi-detached building of traditional granite construction, with a slate roof over. The subjects occupy a substantial site covering c. 0.27 acres including car parking provision to the front of the building and enclosed garden area to the rear.
Internally, the subjects at present are laid out to provide at ground floor level an entrance vestibule along, 2 open plan rooms and toilet facilities. First and lower ground floor provide additional rooms utilized historically for associated nursery services, staff areas and storage. There are two means of access to the first floor, one is from the main entrance vestibule and another via a stairwell from the buildings west elevation.
Internally, the subjects at present are laid out to provide at ground floor level an entrance vestibule along, 2 open plan rooms and toilet facilities. First and lower ground floor provide additional rooms utilized historically for associated nursery services, staff areas and storage. There are two means of access to the first floor, one is from the main entrance vestibule and another via a stairwell from the buildings west elevation.
Full Details
The subjects comprise a semi-detached building of traditional granite construction, with a slate roof over. The subjects occupy a substantial site covering c. 0.27 acres including car parking provision to the front of the building and enclosed garden area to the rear.
Internally, the subjects at present are laid out to provide at ground floor level an entrance vestibule along, 2 open plan rooms and toilet facilities. First and lower ground floor provide additional rooms utilized historically for associated nursery services, staff areas and storage. There are two means of access to the first floor, one is from the main entrance vestibule and another via a stairwell from the buildings west elevation.
Location
Featured Properties
129a Market Street, St. Andrews
Prime retail premises, within the popular tourist town of St Andrews. Net Area of 47 sq. m. (506 sq. ft.). Located on a busy section of Market Street. Adjacent to a number of national occupiers. Excellent Retail Frontage. Available to let at £37,500 per annum.
St Andrews Way, Unit 7 Deans Industrial Estate, Livingston
The subject comprises an industrial premises of brick construction with a profile metal sheet pitched roof.
Internally, the subjects comprise an open plan space with a W.C. facility. Additionally, the mezzanine level is suitable for storage. There are car parking spaces directly in front of the b...
George Buckman Drive, Dundee, DD2 3SP
For Sale. Rare opportunity to acquire a well located industrial estate. Prime location close to outer ring road. Office and workshop/warehouse accommodation extending to 6,236.2 sq. m. and 67,126 sq. ft. (gross internal) across 7 buildings and 3 yard spaces. Let to 9 tenants providing a current inco...
Dockpark House, Nith Bank, Dumfries, Dumfries And Galloway
** CLOSING DATE - THURSDAY 5TH MARCH 2026 @ 12 NOON **
Sheltered Accommodation (HMO) / Redevelopment Opportunity.
Three-storey & attic detached property - 17-Bedrooms (13-Ensuite).
Private parking & large garden overlooking Dock Park & River Nith.
Accessible entrance & facilities wi...
110 South Street, St. Andrews
The subjects present an income producing retail/office premises. Let to Footmed Healthcare Services Ltd with property rental guarantee until 14th March 2029. Offers in excess of £425,000 reflecting a net initial yield of 6.22%.
1 Courthouse Square, Dundee, Angus
City centre offices - entire building car park included potential to convert to alternative uses subject to planning. Student development adjacent part income producing prominent city centre location NIA - 16,877 sqft (1,567.81 sqm) offers in excess of £500,000 invited
22-24 West Nile Street, Glasgow, City Of Glasgow
The subjects consists of a large leisure premises spanning across ground and basement level, forming part of a larger 4 storey building with offices located on the upper floors. The premises benefits from an extensive glazed frontage along West Nile Street, benefitting from the high level of daily ...
104 South Street, Perth, Perth & Kinross
The subjects comprise ground floor retail premises contained within a modern mid terraced block with private residential accommodation above.
The subjects benefit from an extensive window display area, with 2 large windows fronting onto South Street and another very large window fronting onto Ropema...
51-53 South Street, Perth, Perth And Kinross
For Sale/To Let. Coffee Shop/ Retail Unit. Prominent Town Centre Location. 66.52 sq. m. (716 sq. ft.) plus Basement. Fully Fitted Commercial Kitchen. Rent at £12,500 per annum. Offers over £125,000.
Anglers Inn, Main Road, Guildtown, Perth, Perth and Kinross
HOTEL & RESTAURANT, LOCATED ON BUSY ROUTE BETWEEN PERTH AND BLAIRGOWRIE, 6 EN-SUITE LETTING BEDROOMS POTENTIAL FOR ALTERNATIVE USE SUBJECT TO PLANNING SUBSTANTIAL PARKING GIA: 386.93 SQ. M (4165 SQ. FT) OFFERS OVER £350,000
32 Longman Road, Inverness, Highland
Prominent standalone showroom extending to approx. 1,721 sq m (18,526 sq ft) on a 1.672-acre site fronting Longman Road - a key route into Inverness city centre and the main commercial estate. Includes open-plan showroom, ground floor offices and welfare, plus mezzanine offices, boardroom and staff ...
13 Bell Street, St. Andrews
Prime St Andrews Investment for Sale. Refurbished Class 3 Premises with significant tenant demand. Located on a busy section of Bell Street. Long lease and 5 yearly fixed rental uplifts of £2,500 pa. Let at a current rent of £42,500 with 5 yearly uplifts until expiry 30th January 2050. Fixed renta...














