35 Esslemont Avenue, Aberdeen, Aberdeenshire, AB25 1SX
Under Offer
Property Summary
The subjects comprise ground and basement floors contained within a three storey, attic and basement, traditional stone-built property with a pitched and slated roof over incorporating dormer projections. For this property, a new entrance will be formed for pedestrian access via Esslemont Avenue.
Internally, the subjects provide an open plan ground floor retail / hospitality premises, with a kitchen located to the rear of the unit. This unit provides an excellent opportunity for a café / restaurant operation, or other uses which fall under Class 1A consent.
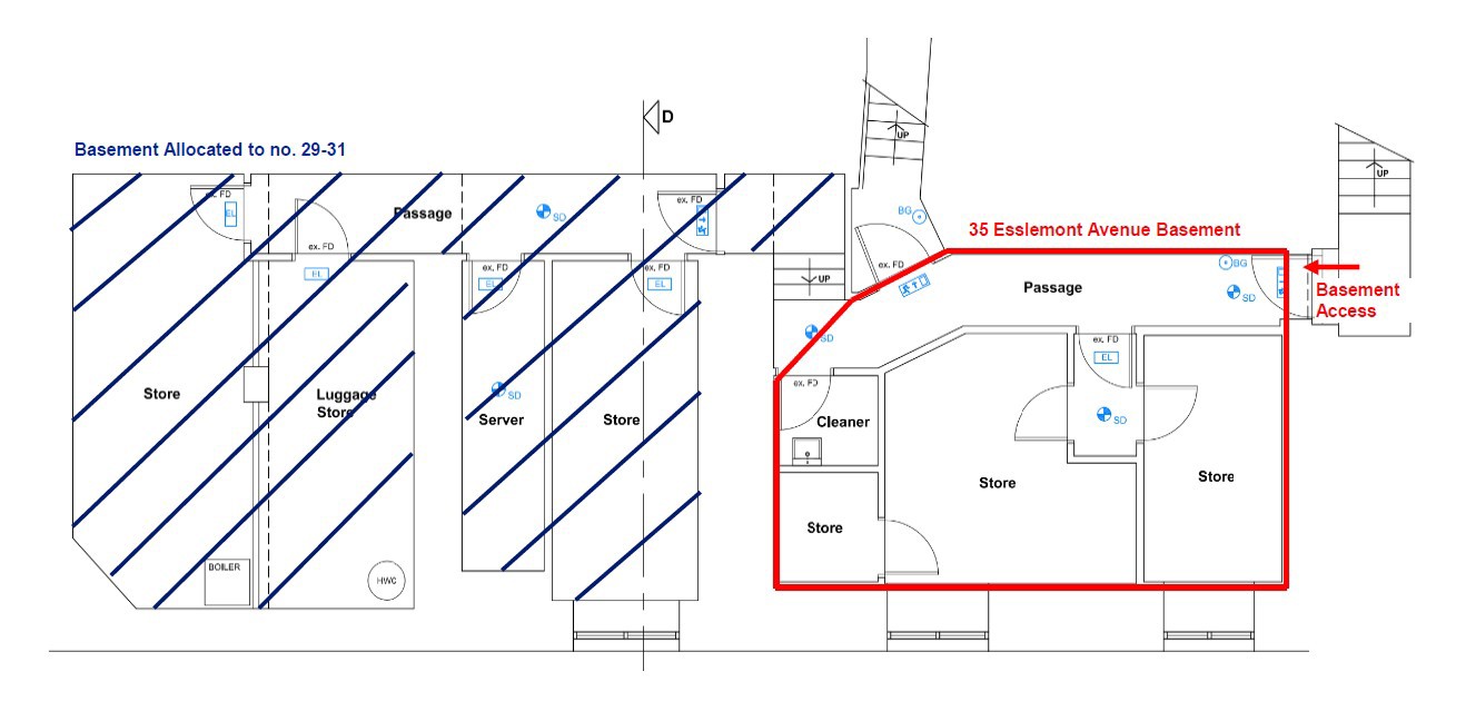
Ancillary storage is located at basement level and accessed externally to the rear of the premises.
Internally, the subjects provide an open plan ground floor retail / hospitality premises, with a kitchen located to the rear of the unit. This unit provides an excellent opportunity for a café / restaurant operation, or other uses which fall under Class 1A consent.
Ancillary storage is located at basement level and accessed externally to the rear of the premises.
Full Details
The subjects comprise ground and basement floors contained within a three storey, attic and basement, traditional stone-built property with a pitched and slated roof over incorporating dormer projections. For this property, a new entrance will be formed for pedestrian access via Esslemont Avenue.
Internally, the subjects provide an open plan ground floor retail / hospitality premises, with a kitchen located to the rear of the unit. This unit provides an excellent opportunity for a café / restaurant operation, or other uses which fall under Class 1A consent.
Ancillary storage is located at basement level and accessed externally to the rear of the premises.
Location
Featured Properties
St Andrews Way, Unit 7 Deans Industrial Estate, Livingston
The subject comprises an industrial premises of brick construction with a profile metal sheet pitched roof.
Internally, the subjects comprise an open plan space with a W.C. facility. Additionally, the mezzanine level is suitable for storage. There are car parking spaces directly in front of the b...
North Road, Fort William, Highland
Modern, purpose-built Drive Thru unit extending to approx. 2,800 sq ft, prominently positioned on the A82 North Road in Fort William - the main route through the town. The site benefits from 27 dedicated parking spaces, landscaped surroundings, and a high-profile roadside totem sign. Ideally suited...
129a Market Street, St. Andrews
Prime retail premises, within the popular tourist town of St Andrews. Net Area of 47 sq. m. (506 sq. ft.). Located on a busy section of Market Street. Adjacent to a number of national occupiers. Excellent Retail Frontage. Available to let at £37,500 per annum.
Dockpark House, Nith Bank, Dumfries, Dumfries And Galloway
** CLOSING DATE - THURSDAY 5TH MARCH 2026 @ 12 NOON **
Sheltered Accommodation (HMO) / Redevelopment Opportunity.
Three-storey & attic detached property - 17-Bedrooms (13-Ensuite).
Private parking & large garden overlooking Dock Park & River Nith.
Accessible entrance & facilities wi...
1 Courthouse Square, Dundee, Angus
City centre offices - entire building car park included potential to convert to alternative uses subject to planning. Student development adjacent part income producing prominent city centre location NIA - 16,877 sqft (1,567.81 sqm) offers in excess of £500,000 invited
104 South Street, Perth, Perth & Kinross
The subjects comprise ground floor retail premises contained within a modern mid terraced block with private residential accommodation above.
The subjects benefit from an extensive window display area, with 2 large windows fronting onto South Street and another very large window fronting onto Ropema...
The Crieff Road Chippie, 22-24 Crieff Road, Perth, Perth And Kinross
For Sale. An established hot food business which has been trading for 36 years. Available for sale due to retirement. The premises are now closed but accounting information is available. Our client is inviting offers in excess of £110,000 for their heritable interest and business.
Wallace Bros, 2-4 Well Street, Moffat, Dumfries And Galloway
BUSINESS FOR SALE.
Long established family butchers.
Freehold sale.
Fully-fitted ground floor premises.
Prime trading position within affluent tourist town.
Includes income producing rental unit which also offers scope for business expansion.
Qualifies for 100% rates relief (subject to occupier elig...
1 Brasswell Park, Dumfries, Dumfries & Galloway
Modern building fitted to a high standard.
Extensive roadside frontage.
Adjacent to A75 bypass.
GIA: 1,018 sq.m. (10,960 sq.ft.).
Site Area: 0.727 Ha (1.8 Ac).
Scope for alternative use and further development (STC).
32 Longman Road, Inverness, Highland
Prominent standalone showroom extending to approx. 1,721 sq m (18,526 sq ft) on a 1.672-acre site fronting Longman Road - a key route into Inverness city centre and the main commercial estate. Includes open-plan showroom, ground floor offices and welfare, plus mezzanine offices, boardroom and staff ...
George Buckman Drive, Dundee, DD2 3SP
For Sale. Rare opportunity to acquire a well located industrial estate. Prime location close to outer ring road. Office and workshop/warehouse accommodation extending to 6,236.2 sq. m. and 67,126 sq. ft. (gross internal) across 7 buildings and 3 yard spaces. Let to 9 tenants providing a current inco...
125 High Street, Perth
Retail Premises. Prime Pedestrianised Section of High Street. NIA: 336.97 SQ M (3,628 SQ FT). Asking Rent - £50,000 Per Annum. Sale Price - Offers Over £500,000. Close Proximity to recently opened Perth Museum bringing significant traffic to city.




























