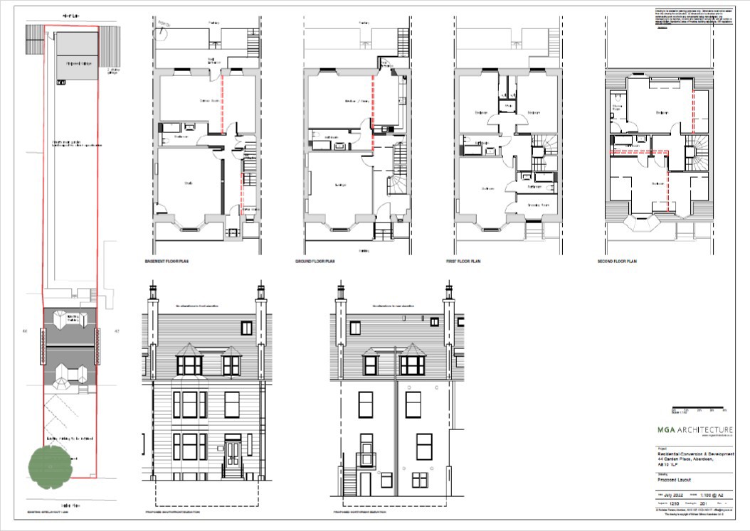
44 Carden Place, Aberdeen, Aberdeenshire, AB10 1UP
For Sale/To Let
Property Summary
The premises comprise of office accommodation arranged over lower ground, ground, first and top levels contained within a traditional granite and slate building incorporating dormer projections.
Internally the accommodation provides a cellular office accommodation along with male and female w.c. facilities and a tea prep are located on the lower ground floor with further w.c. and tea prep facilities located at first and top floor levels. Lighting is by fluorescent fitments with heating is provided by a gas fired central heating system.
Internally the accommodation provides a cellular office accommodation along with male and female w.c. facilities and a tea prep are located on the lower ground floor with further w.c. and tea prep facilities located at first and top floor levels. Lighting is by fluorescent fitments with heating is provided by a gas fired central heating system.
Full Details
The premises comprise of office accommodation arranged over lower ground, ground, first and top levels contained within a traditional granite and slate building incorporating dormer projections.
Internally the accommodation provides a cellular office accommodation along with male and female w.c. facilities and a tea prep are located on the lower ground floor with further w.c. and tea prep facilities located at first and top floor levels. Lighting is by fluorescent fitments with heating is provided by a gas fired central heating system.
Location
Featured Properties
North Road, Fort William, Highland
Modern, purpose-built Drive Thru unit extending to approx. 2,800 sq ft, prominently positioned on the A82 North Road in Fort William - the main route through the town. The site benefits from 27 dedicated parking spaces, landscaped surroundings, and a high-profile roadside totem sign. Ideally suited...
10 Alloway Street, Ayr, South Ayrshire
The subjects comprise a first floor premises forming part of a larger unit accessed off a pend shared with other occupiers including Glendale Carpets and Helen's Restaurant.
The unit is currently a showroom although is considered suitable for a variety of uses including office or studio/gym subject...
1 Brasswell Park, Dumfries, Dumfries & Galloway
Modern building fitted to a high standard.
Extensive roadside frontage.
Adjacent to A75 bypass.
GIA: 1,018 sq.m. (10,960 sq.ft.).
Site Area: 0.727 Ha (1.8 Ac).
Scope for alternative use and further development (STC).
1 Courthouse Square, Dundee, Angus
City centre offices - entire building car park included potential to convert to alternative uses subject to planning. Student development adjacent part income producing prominent city centre location NIA - 16,877 sqft (1,567.81 sqm) offers in excess of £500,000 invited
104 South Street, Perth, Perth & Kinross
The subjects comprise ground floor retail premises contained within a modern mid terraced block with private residential accommodation above.
The subjects benefit from an extensive window display area, with 2 large windows fronting onto South Street and another very large window fronting onto Ropema...
Anglers Inn, Main Road, Guildtown, Perth, Perth and Kinross
HOTEL & RESTAURANT, LOCATED ON BUSY ROUTE BETWEEN PERTH AND BLAIRGOWRIE, 6 EN-SUITE LETTING BEDROOMS POTENTIAL FOR ALTERNATIVE USE SUBJECT TO PLANNING SUBSTANTIAL PARKING GIA: 386.93 SQ. M (4165 SQ. FT) OFFERS OVER £350,000
Former RBS, 29-31 Harbour Road, Inverness, Highland
For Sale, a prominent two-storey flat-roof retail/office building extending to 10,035 sq ft, set within a 0.572-acre site in a prime position on Harbour Road - Inverness's main commercial thoroughfare within the Longman Industrial Estate. Offers over £495,000, to be submitted via Offr.
24 Reform Street, Dundee, City Of Dundee
Café/restaurant premises high profile location within reform street close to established national brands including McDonalds, Boots and Santander currently fitted out as a restaurant premises holds hot food licence rental offers over £35,000 per annum NIA - 308 sqm (3,315sqft) over ground and base...
George Buckman Drive, Dundee, DD2 3SP
For Sale. Rare opportunity to acquire a well located industrial estate. Prime location close to outer ring road. Office and workshop/warehouse accommodation extending to 6,236.2 sq. m. and 67,126 sq. ft. (gross internal) across 7 buildings and 3 yard spaces. Let to 9 tenants providing a current inco...
Unit 2 Silverburn Crescent, Bridge Of Don, Aberdeen
The property comprises a semi-detached industrial unit of steel portal frame construction with concrete block dado wall harled externally with a pitched roof over.
Internally, the property is laid out to provide warehouse and office accommodation with associated staff facilities. The warehou...
W-Zero2, 1A, Minto Drive, Altens Industrial Estate, Aberdeen
- Fully refurbished in line with Net Zero Guidance
- Prime industrial location in the ETZ
- Detached warehouse extending to 1,880 sq.m (20,230 sq.ft)
- Large secure yard extending to 3,300 sq.m (35,8000 sq.ft)
- In heart of revitalised energy cluster with access to world class R&D support networ...
29-31 Parsons Green Terrace, Meadowbank, Edinburgh, City Of Edinburgh
The subject comprise a highly prominent Class 1A premises arranged over the ground floor of a four-storey traditional stone-built terrace with a single-storey projection under a flat felt roof. The property benefits from a triple-glazed frontage which encourages significant exposure for vehicular p...
































