Crawpeel Road, Altens, Aberdeen, Aberdeenshire, AB12 3LG
Property Summary
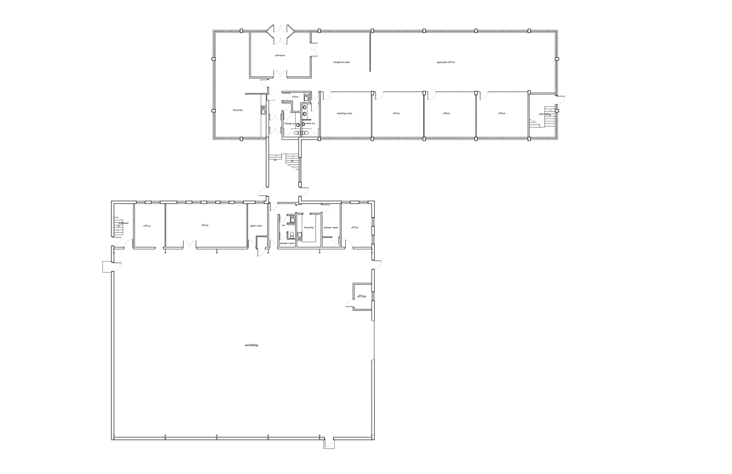
The warehouse unit is of a steel portal frame construction with blockwork walls to dado height and profile metal cladding thereafter. The roof over is pitched and clad with metal cladding incorporating translucent roof panels with artificial lighting being provided by a number of high bay light fitments.
Warehouse offices have been created on the ground floor along with staff areas. The eaves height is approx. 6.2M and the unit benefits from a 5T overhead crane.
The offices at ground floor are currently laid out in a mix of open plan and private office accommodation with kitchenette and w.c. facilities. There are good levels of natural light throughout with artificial lighting being provided by CAT 2 fitments within the suspended tile ceiling.
A link building connects the warehouse to the office and also provides access to the first floor office accommodation.
Yard - The subjects benefit from a concrete surfaced forecourt incorporating a wash bay along with areas of hardcore yard. These areas benefit from being floodlit from the building.
Additional Office Accommodation - Additional open plan office accommodation can be provided if required of 6,686sqft.
Car Parking - The subjects provide parking for approximately 40 cars.
Full Details
The subjects comprise of a detached warehouse and office facility with a secure yard.
The warehouse unit is of a steel portal frame construction with blockwork walls to dado height and profile metal cladding thereafter. The roof over is pitched and clad with metal cladding incorporating translucent roof panels with artificial lighting being provided by a number of high bay light fitments.
Warehouse offices have been created on the ground floor along with staff areas. The eaves height is approx. 6.2M and the unit benefits from a 5T overhead crane.
The offices at ground floor are currently laid out in a mix of open plan and private office accommodation with kitchenette and w.c. facilities. There are good levels of natural light throughout with artificial lighting being provided by CAT 2 fitments within the suspended tile ceiling.
A link building connects the warehouse to the office and also provides access to the first floor office accommodation.
Yard - The subjects benefit from a concrete surfaced forecourt incorporating a wash bay along with areas of hardcore yard. These areas benefit from being floodlit from the building.
Additional Office Accommodation - Additional open plan office accommodation can be provided if required of 6,686sqft.
Car Parking - The subjects provide parking for approximately 40 cars.






















