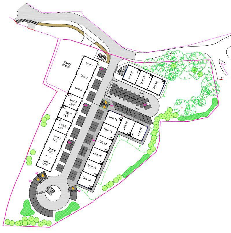
New Build Development Granish Business Park, Aviemore, Highland, PH22 1AS
To Let
Property Summary
New Build Development comprising 20 clear span units; flexible space options available from 1,238 ft: Suitable for various uses; Completion targeted for Q4 2025; On-site car parking; Yard space options available; Easy access to main A9 Trunk Road; On-site EV Charge Points: Rent from £15,500 per annum.
Full Details
New Build Development comprising 20 clear span units; flexible space options available from 1,238 ft: Suitable for various uses; Completion targeted for Q4 2025; On-site car parking; Yard space options available; Easy access to main A9 Trunk Road; On-site EV Charge Points: Rent from £15,500 per annum.
Location
Featured Properties
13 Bell Street, St. Andrews
Prime St Andrews Investment for Sale. Refurbished Class 3 Premises with significant tenant demand. Located on a busy section of Bell Street. Long lease and 5 yearly fixed rental uplifts of £2,500 pa. Let at a current rent of £42,500 with 5 yearly uplifts until expiry 30th January 2050. Fixed renta...
Dockpark House, Nith Bank, Dumfries, Dumfries And Galloway
** CLOSING DATE - THURSDAY 5TH MARCH 2026 @ 12 NOON **
Sheltered Accommodation (HMO) / Redevelopment Opportunity.
Three-storey & attic detached property - 17-Bedrooms (13-Ensuite).
Private parking & large garden overlooking Dock Park & River Nith.
Accessible entrance & facilities wi...
Digital/Data Centre & Manufacturing Campus, East Airdrie
Proposed Digital/Data Centre & Manufacturing Campus (Classes 4, 5, 6, and 10). Proposal including Data Centres, Gigafactory, Research, Offices, Electricity Infrastructure / Battery Energy Storage, and Ancillary Services (Classes 1 and 3 including Sui Generis).
A Proposal of Application Notice (...
1 Courthouse Square, Dundee, Angus
City centre offices - entire building car park included potential to convert to alternative uses subject to planning. Student development adjacent part income producing prominent city centre location NIA - 16,877 sqft (1,567.81 sqm) offers in excess of £500,000 invited
The Crieff Road Chippie, 22-24 Crieff Road, Perth, Perth And Kinross
For Sale. An established hot food business which has been trading for 36 years. Available for sale due to retirement. The premises are now closed but accounting information is available. Our client is inviting offers in excess of £110,000 for their heritable interest and business.
22-24 West Nile Street, Glasgow, City Of Glasgow
The subjects consists of a large leisure premises spanning across ground and basement level, forming part of a larger 4 storey building with offices located on the upper floors. The premises benefits from an extensive glazed frontage along West Nile Street, benefitting from the high level of daily ...
110 South Street, St. Andrews
The subjects present an income producing retail/office premises. Let to Footmed Healthcare Services Ltd with property rental guarantee until 14th March 2029. Offers in excess of £425,000 reflecting a net initial yield of 6.22%.
Anglers Inn, Main Road, Guildtown, Perth, Perth and Kinross
HOTEL & RESTAURANT, LOCATED ON BUSY ROUTE BETWEEN PERTH AND BLAIRGOWRIE, 6 EN-SUITE LETTING BEDROOMS POTENTIAL FOR ALTERNATIVE USE SUBJECT TO PLANNING SUBSTANTIAL PARKING GIA: 386.93 SQ. M (4165 SQ. FT) OFFERS OVER £350,000
10 Alloway Street, Ayr, South Ayrshire
The subjects comprise a first floor premises forming part of a larger unit accessed off a pend shared with other occupiers including Glendale Carpets and Helen's Restaurant.
The unit is currently a showroom although is considered suitable for a variety of uses including office or studio/gym subject...
Banbeath Industrial Estate, Leven, Fife
To Let. A substantial industrial complex, consisting of a range of industrial and warehouse buildings located on a site extending to roughly 16 acres. Individual units from circa 460 sq. ft. - 184,875 sq. ft. Buildings and land available on a single or multiple lot basis. Flexible lease terms avail...
51-53 South Street, Perth, Perth And Kinross
For Sale/To Let. Coffee Shop/ Retail Unit. Prominent Town Centre Location. 66.52 sq. m. (716 sq. ft.) plus Basement. Fully Fitted Commercial Kitchen. Rent at £12,500 per annum. Offers over £125,000.
Residential Investment Portfolio, St Andrews
Investment and development for sale. Rare acquisition opportunity. LBTT savings if acquired as a single portfolio. Properties are located across the prominent town of St Andrews. Sale of development opportunity at 10/12 Argyle Street will be considered in isolation. Approximate annual rental income ...




























