76 High Street, Paisley, Renfrewshire, PA1 2BA
Property Summary
The adjacent table provides details of the proposed schedule of accommodation. Each room would be approximately 12.5 sqm in size with the accessible rooms slightly larger. The total developable area is approximately 6,788 sqm or thereby
Full Details
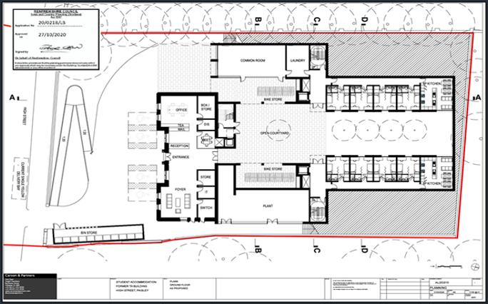
The granted consent consists of the retention of the original building façade and the construction of a new part 6 and part 7 storey extensions to the rear which will be arranged around a courtyard area. The approved consent is for the provision of 169 cluster flats which would be able to house up to 338 students. 10 rooms would be accessible rooms. All rooms would be twin rooms with en-suite shower and toilet together with shared kitchen and common rooms. The design allows for different occupational mixes. Option 1 is a 20/50/30 mix of Twin/Single/Double rooms. Option 2 being a 70/30 split between single and double rooms. A feature of the proposed scheme is that of covered bicycle parking for 84 bikes with no allocation for private car.
The adjacent table provides details of the proposed schedule of accommodation. Each room would be approximately 12.5 sqm in size with the accessible rooms slightly larger. The total developable area is approximately 6,788 sqm or thereby






















